El Centro Cultural Lola Flores II contará con tablao y un espacio para la familia Flores

El Ayuntamiento saca a licitación el contrato de suministro e instalación de este espacio, situado frente al museo y que estará dedicado a la familia de la artista

Las Esclavas del Santísimo Sacramento, del Convento de las Reparadoras, se marchan de Jerez

Una imagen del inmueble en el que irá situado el Centro Cultural Lola Flores II.
Una imagen del inmueble en el que irá situado el Centro Cultural Lola Flores II. / Miguel Ángel González

Casi dos años después de su anuncio por parte del Ayuntamiento de Jerez, el Centro Cultural Lola Flores II empieza a tomar forma. El nuevo espacio, situado frente al museo dedicado a la Faraona, es una continuación de éste, tal y como recoge el proyecto realizado por el arquitecto Juan Pablo Rodríguez Frade (Frade Arquitectos), que acaba de salir a licitación.

El edificio, que cuenta con una superficie de 202,84 m2, distribuidos en dos plantas, estará dedicado a la familia Flores, pero también albergará una parte comercial y cultural. Así, para esta última se destinará la planta baja, dejando la planta superior para desarrollar la exposición propiamente dicha, una exposición que profundizará en el legado y carrera artística de la familia Flores: Antonio González 'El Pescailla', Carmen Flores, Rosario Flores, Lolita Flores y Antonio Flores.

El proyecto presentado por el estudio de Arquitectos Frade pretende que la planta baja albergue "actividades constantes relacionadas con Lola Flores y con el flamenco, por lo que se entiende como un espacio amplio y polivalente donde los usos de tienda, actividades culturales y espectáculos musicales conviven e incluso se mezclan".

Dicho espacio tendrá también una pequeña barra de bar, y "una zona de mesas bajas con posible tablao desmontable". De hecho, dentro de la propuesta que se ha realizado se contempla también la posibilidad de sacar el tablao en el espacio abierto que tiene el edificio en fechas en las que el tiempo lo permita. Asimismo, "se prevén entre 30 y 40 sillas de madera y mimbre y entre 15 y 6 y 8 pequeñas mesas bajas de apoyo".

El informe que se incluye en la licitación habla además de que la explotación de este espacio corresponderá al Ayuntamiento, algo que correrá a cargo de Fundarte, como ocurre con el museo de Lola Flores, y especifica que el bar pertinente saldrá a concurso. Lo que no deja claro es quién gestionará el tablao del que se habla.

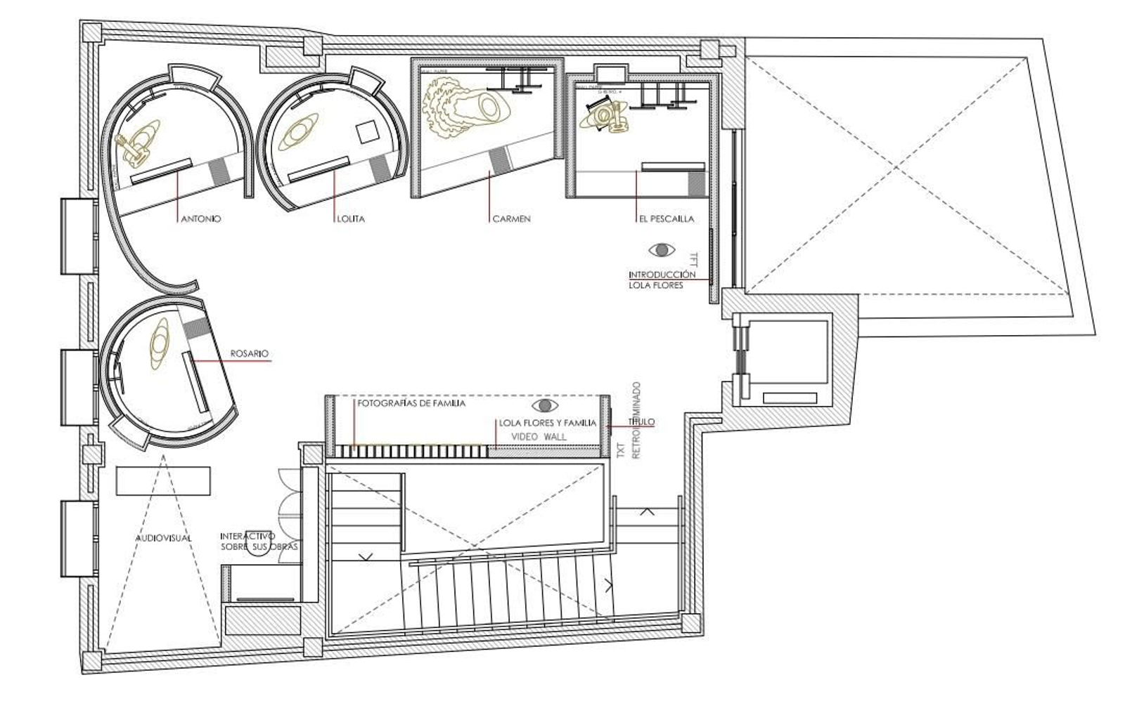
Plano de las plantas del edificio.
Plano de las plantas del edificio.

La primera planta, por su parte, se ha proyectado conforme a las denominadas "capillas expositivas", donde tendrán su particular espacio todos los miembros de la familia Flores. En ella, según recoge el plano "se plantea lo que es propiamente dicho la exposición permanente. Hemos tratado de utilizar variados recursos museográficos de acuerdo a cada uno de los contenidos y con el objeto de formalizar una visita amena y variada".

Imagen de la primera planta, donde irá la exposición de la familia.
Imagen de la primera planta, donde irá la exposición de la familia.

Será Lola Flores la que dé la bienvenida a los asistentes en esta primera planta "mediante una producción específica, que se activará de forma manual y que se proyectará en una pantalla", para posteriormente pasar a los distintos espacios dedicado al resto de familiares. Además, la planta se completará con otra zona en la que se colocará "un puesto de consulta interactiva para profundizar en el conocimiento" de los integrantes.

Del mismo modo, el proyecto da la posibilidad también de contar con "un puesto de consulta en donde se escuchar y contemplar entrevistas a conocidos amigos o admiradores de Lola Flores dando su opinión personal sobre la artista", proponiéndose además la realización "de nuevas entrevistas con personajes de actualidad, del mundo artístico y cultural dando su opinión con cierta perspectiva histórica". Para ello, "se utilizarán monitores con cascos/paraguas de sonido".

Vista frontal del centro.
Vista frontal del centro.

Por último, la zona incluirá una "zona de audiovisual, cuya producción será realizada ex profeso, de 5 minutos, como resumen de los contenidos, con actuaciones de todos los miembros, y fragmentos inéditos de la vida familiar. Con música, locución y subtítulos en inglés".

En principio, el presupuesto total del proyecto que ha salido a licitación es de estaba valorado en 148.064,47 euros. El proceso para presentar ofertas ya está abierto.

stats